97m2

Úžitková plocha

4

Počet obývateľných izieb

holodom/štandard

Stav

Informácie

IBV HERĽANY- 6x NOVOSTAVBA RD

obec Herľany

Na vyžiadanie

Na predaj 6 moderných rodinných domov v úžasnom prostredí pri Herlianskom gejzíry, národnej prírodnej pamiatke, kde sa môžete tešiť na príjemné bývanie a krásne okolie.

Technické parametre:
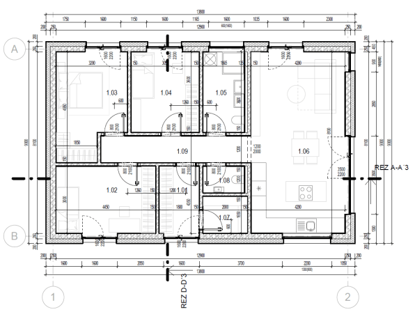
4 izby, kúpeľňa, 1 samostatné WC, technická miestnosť + terasa
Jednopodlažné, nepodpivničené rodinné domy s úžitkovou plochou 97,88m2.
Rozloha pozemkov: od 435m2 do 964,4m2
Zateplenie systémom ETICS, falcovaná plechová strecha

IS: Elektrina, obecný vodovod, dažďová kanalizácia, žumpa
Dve parkovacie miesta priamo na pozemku pred domom

Dispozícia:
Zádverie, chodba, technická miestnosť, samostatné WC, kúpeľňa, kuchyňa, jedáleň, obývacia izba, 3x spálňa + terasa

Lokalita:
27 km od Košíc v Košickom kraji
Blízkosť Herlianskeho gejzíru, prírodná rezervácia Malé Brdo
Diaľničné spojenie v úplnej blízkosti KE-Budimír

Výmera pozemkov:
Dom A (1. vľavo): pozemok 458 m²
Dom B: pozemok 500,40 m²
Dom C: pozemok 964,40 m²
Dom D: pozemok 572,70 m²
Dom E: pozemok 489,10 m²
Dom F (1. vpravo): pozemok 435 m²

Rodinný dom A je dokončený do štádia ŠTANDARD, kvôli prezentácií. 

Cena je na vyžiadanie a závisí od veľkosti pozemku.

V cene RD je výstavba prístupovej cesty, prípojky na inžinierske siete a podiel na prístupovej ceste.

0917 597 386

Kontaktujte nás pre viac informácií !

Zadané informácie sú neplatné. Skontrolujte formát poľa a skúste to znova.
Ste prihlásený na odber noviniek.

Newsletter